资源共享
课程章节-项目十六: 内轮廓加工实训
学习目标:
1、掌握内轮廓加工时刀具的定位点设置。
2、学会分析简单孔类零件的加工工艺。
3、熟悉掌握内孔刀的安装及对刀方法。
4、掌握利用刀补来控制尺寸精度的基本方法。
知识点击:
生产实际中大多数的零件会有内轮廓的加工。加工前需要仔细分析图纸,设定好最佳的加工工艺,装夹方法,选择小于工件底孔直径的内孔刀具,如果是盲孔刀具的角度一定要选择主偏角大于90度的内孔刀。最重要的是刀具在定位坐标值的时候一定要小于工件底孔直径,退刀时先退X值,后退Z值。
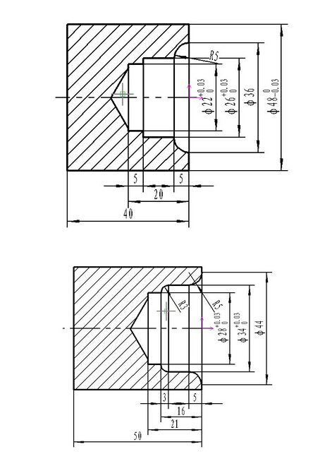
一、实训内容
二、实训步骤
1、工艺分析
⑴ 先车出端面,并以端面的中心为原点建立工件坐标系。
⑵ 该零件可采用G00、G01进行车削加工。注意退刀时,先X方向后Z方向,以免刀具撞上工件。
2、确定工艺方案
⑴ 车端面;
⑵ 从右至左车削工件各面;
3、刀具选择
将所选定的刀具参数填入表1-1轴类零件数控加工刀具卡片中,便于编程和操作管理。
表1-1数控加工刀具卡
|
产品名称 |
|
零件名称 |
|
零件图号 |
|
||||
|
工步号 |
刀具号 |
刀具名称 |
数量 |
加工表面 |
刀尖半径/mm |
备注 |
|||
|
1 |
T01 |
93°内孔车刀 |
1 |
平端面 |
0.8 |
粗车 |
|||
|
内轮廓 |
|||||||||
|
2 |
T02 |
93°内孔车刀 |
1 |
内轮廓 |
0.4 |
精车 |
|||
|
编制 |
|
审核 |
|
批准 |
共1页 |
第1页 |
|||
4、切削用量选择
根据被加工表面质量要求、刀具材料和工件材料,参考切削用量手册或有关资料选取切削速度与每转进给量,填入表1-2工序卡中。
表1-2 数控加工工序卡
|
单位名称 |
蚌埠科技工程学校 |
班级学号 |
姓名 |
成绩 |
零件名称 |
零件图号 |
|
|
|
|
|
|
|
|||
|
工序号 |
程序编号 |
夹具名称 |
数控系统 |
使用设备 |
材料 |
场地 |
|
|
001 |
O0001 |
三爪卡盘 |
FANUC |
CK6140 |
45钢 |
数控加工实训中心 |
|
|
工步号 |
工步内容 |
刀具号 |
刀具规格mm |
主轴转速r/min |
进给量mm/r |
背吃刀量mm |
备注 |
|
1 |
手动平端面 |
T01 |
20×20 |
500 |
|
|
手动 |
|
2 |
粗车内轮廓 |
0.2 |
2 |
自动 |
|||
|
3 |
精车内轮廓 |
T02 |
20×20 |
800 |
0.05 |
0.5 |
自动 |
|
编制 |
|
审核 |
|
批准 |
|
共1页 |
第1页 |
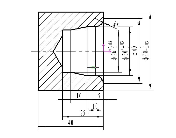
5、编写程序,输入数控装置,图形模拟演示,检查程序。
|
程序号:O0001 |
||
|
程序段号 |
程序内容 |
说明 |
|
N10 |
T0101 M08 ; |
换1号粗车刀,切削液开 |
|
N20 |
M03 S500 ; |
主轴正转500 r/min |
|
N30 |
G00 X48.5.0 Z2.0 ; |
快速进刀 |
|
N40 |
G01 Z-50. F0.2; |
粗车外圆,留余量0.5 mm |
|
N50 |
X52.0 ; |
X向退刀 |
|
N60 |
G00 X100.0 Z100.0 ; |
快速退刀至换刀点 |
|
N70 |
M05; |
主轴停止 |
|
N80 |
M00 ; |
程序暂停 |
|
N90 |
T0202 M03 S1000 ; |
换2号精车刀,主轴正转10000 r/min |
|
N100 |
G00 X48.0 Z2.0 ; |
快速进刀 |
|
N110 |
G01 Z-50.0 F0.1 ; |
精车φ48外圆 |
|
N120 |
X52.0; |
X向退刀 |
|
N130 |
G00 X100.0 Z100.0 ; |
快速退刀至换刀点 |
|
N140 |
M05 ; |
主轴停止 |
|
N150 |
M00 ; |
程序暂停 |
|
N160 |
T0303 ; |
换3号粗镗刀 |
|
N170 |
M03 S500 ; |
主轴正转500 r/min |
|
N180 |
G00 X23.0 Z2.0 ; |
快速进至循环起点 |
|
N190 |
G71 U1 R0.5 ; |
粗车内孔循环,背吃刀量1mm,退刀量0.5mm |
|
N200 |
G71 P210 Q270 U-0.5 W0.1 F0.15 ; |
按N210~N270指定精车路线,X向留精车余量为-0.5mm |
|
N210 |
G00 X40.0 ; |
快速进刀 |
|
N220 |
G01 Z0 F0.1; |
进刀,精加工进给量0.1 mm/r |
|
N230 |
G02 X30.0 Z-5.0 R5 ; |
车圆弧 |
|
N240 |
G01 Z-10.0 ; |
车内孔 |
|
N250 |
X26.0 Z-20.0 ; |
车锥孔 |
|
N260 |
Z-25.0 ; |
车内孔 |
|
N270 |
X23.0 ; |
退刀 |
|
N280 |
G00 Z100.0 ; |
快速退至换刀点 |
|
N290 |
X100.0 |
X向快速退刀 |
|
N300 |
M05 ; |
主轴停止 |
|
N310 |
M00 ; |
程序暂停 |
|
N320 |
T0404; |
换4号精镗刀 |
|
N330 |
M03 S1000 ; |
主轴正转1000 r/min |
|
N340 |
G00 X23.0 Z2.0 ; |
快速进至循环起点 |
|
N350 |
G70 P210 Q270 ; |
精车循环 |
|
N360 |
G00 Z100.0 ; |
Z向快速退刀 |
|
N370 |
X100.0 ; |
X向快速退刀 |
|
N380 |
M05 ; |
主轴停止 |
|
N390 |
M30 ; |
程序结束 |
6、对刀:依次在工件毛坯上对好每一把刀在X、Z方向的坐标值。
(1) X方向对刀:回零→【MDI】→输入“S400 M03;T0101;”→按下【CYCLE START】键转动主轴。
【手摇】→切削底孔→沿Z轴退刀→停车测量内径→按【OFS/SET】键→按【偏置】键→【形状】里→输入“X直径值”→按【测量】软键→刀具X向补偿值自动输入到几何形状里
(2) Z方向对刀:【手摇】→刀具切削端面→沿X轴正方向退刀→【形状】→输入“Z0” →按【测量】软键→刀具Z向补偿值自动输入到几何形状里。
7、自动运行程序,加工工件。
8、粗车后测量零件尺寸,根据工件图样要求的尺寸精度修改刀具磨损量;再次运行程序,加工出合格工件。
三、检验与考核:
检验与考核的内容及标准见表1-3。
表1-3 考核内容及标准
|
|
序号 |
考核内容 |
考核标准 |
评分标准 |
得分 |
|
|
编 程 |
1 |
设置工件坐标系 |
没有设定工件坐标系原点,全扣;原点位置设定不合理,扣2分 |
4 |
|
|
|
2 |
刀具安装 |
每把不合理扣2分 |
4 |
|
||
|
3 |
工艺路线、工艺参数 |
工艺路线不合理扣10分;工艺参数选择不合理扣10分 |
15 |
|
||
|
4 |
换刀点的选择 |
与工件等发生干涉,全扣 |
5 |
|
||
|
5 |
数控指令的使用 |
一般性指令错一处扣1分;出现一处危险性指令扣5分 |
10 |
|
||
|
6 |
程序结构 |
无程序名扣1分;程序格式与系统不相符,全扣 |
5 |
|
||
|
操 作 |
1 |
程序输入 |
超过10 min ,全扣 |
4 |
|
|
|
2 |
图形模拟演示 |
检查程序正确 |
4 |
|
||
|
3 |
对刀操作 |
方法正确,每把刀2分 |
4 |
|
||
|
4 |
自动运行程序 |
操作过程正确 |
4 |
|
||
|
5 |
刀具补偿调整尺寸 |
方法错误,全扣 |
3 |
|
||
|
6 |
安全操作 |
符合安全操作规程 |
4 |
|
||
|
工 件 |
1 |
外圆Φ38 0 -0.03 |
IT |
超差扣3分 |
6 |
|
|
|
Ra |
降一级扣2分 |
||||
|
2 |
外圆Φ20 0 -0.03 |
IT |
超差扣3分 |
6 |
|
|
|
|
Ra |
降一级扣2分 |
||||
|
3 |
长度20 |
超差全扣 |
4 |
|
||
|
4 |
长度50 |
超差全扣 |
4 |
|
||
|
5 |
锥面 |
IT |
超差扣4分 |
5 |
|
|
|
|
Ra |
降一级扣2分 |
||||
|
6 |
5*2槽 |
IT |
超差扣3分 |
5 |
|
|
|
|
Ra |
降一级扣2分 |
||||
|
7 |
其余表面粗糙度Ra3.2 |
降一级扣2分 |
4 |
|
||
|
总计 |
100 |
|||||
四、注意事项:
1、为正确地编写数控程序,应在编写程序前根据工件的情况选择工件原点。确定好工件原点后,还必须确定刀具的起始点。
2、编程时还应考虑车削外圆的始点和端面车削的始点,这两点的确定应结合考虑工件的毛坯情况。如果毛坯余量较大,应进行多次粗车,最后进行一次精车,因而每次的车削始点都不相同。
五、习题:
- 上一篇:课程章节-项目十五:螺纹循环指令G92加工实训
- 下一篇:教案一:数控车床工件坐标系

