资源共享
课程章节-项目十一:G00与G01外轮廓加工实训
学习目标:
1、掌握G00和G01指令的正确使用方法。
2、学会分析简单轴类零件的加工工艺。
3、熟悉掌握外圆刀、切槽到的安装及对刀方法。
4、掌握利用刀补来控制尺寸精度的基本方法。
知识点击:
快速点定位指令G00和直线插补指令G01都是模态(续效)指令。G00是以点位控制方式从刀具所在点以机床的最快速度移动到坐标系的设定点。它只是快速定位,不能做为切削加工。G01是从刀具所在点以F指令的进给速度进行直线插补。
一、实训内容
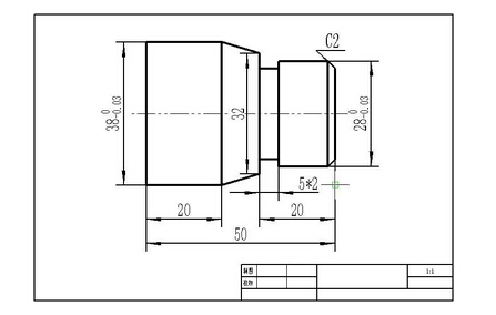
加工如图1-1所示零件。毛坯为Φ40mm×52mm的棒料。
二、实训步骤
1、工艺分析
⑴ 先车出端面,并以端面的中心为原点建立工件坐标系。
⑵ 该零件可采用G00、G01进行车削加工,最后切槽。注意退刀时,先X方向后Z方向,以免刀具撞上工件。
2、确定工艺方案
⑴ 车端面;
⑵ 从右至左车削工件各面;
⑶ 切槽;
3、刀具选择
将所选定的刀具参数填入表1-1轴类零件数控加工刀具卡片中,便于编程和操作管理。
表1-1数控加工刀具卡
|
产品名称 |
|
零件名称 |
|
零件图号 |
|
||||
|
工步号 |
刀具号 |
刀具名称 |
数量 |
加工表面 |
刀尖半径/mm |
备注 |
|||
|
1 |
T01 |
93°外圆车刀 |
1 |
平端面 |
0.8 |
|
|||
|
外轮廓 |
|||||||||
|
2 |
T02 |
4mm切槽刀 |
1 |
切槽 |
0.4 |
|
|||
|
编制 |
|
审核 |
|
批准 |
共1页 |
第1页 |
|||
4、切削用量选择
根据被加工表面质量要求、刀具材料和工件材料,参考切削用量手册或有关资料选取切削速度与每转进给量,填入表1-2工序卡中。
表1-2 数控加工工序卡
|
单位名称 |
蚌埠科技工程学校 |
班级学号 |
姓名 |
成绩 |
零件名称 |
零件图号 |
|
|
|
|
|
|
|
|||
|
工序号 |
程序编号 |
夹具名称 |
数控系统 |
使用设备 |
材料 |
场地 |
|
|
001 |
O0001 |
三爪卡盘 |
FANUC |
CK6140 |
45钢 |
数控加工实训中心 |
|
|
工步号 |
工步内容 |
刀具号 |
刀具规格mm |
主轴转速r/min |
进给量mm/r |
背吃刀量mm |
备注 |
|
1 |
手动平端面 |
T01 |
20×20 |
500 |
|
|
手动 |
|
2 |
车削外轮廓 |
0.2 |
2 |
自动 |
|||
|
3 |
切槽 |
T02 |
20×20 |
300 |
0.05 |
2 |
自动 |
|
编制 |
|
审核 |
|
批准 |
|
共1页 |
第1页 |
5、编写程序,输入数控装置,图形模拟演示,检查程序。
|
程序号:O0001 |
||
|
程序段号 |
程序内容 |
说明 |
|
N10 |
T0101 M08 ; |
换1号车刀,切削液开 |
|
N20 |
M03 S500 ; |
主轴正转500 r/min |
|
N30 |
G00 X40.0 Z2.0 ; |
快速进刀 |
|
N40 |
X24.0 |
定位 |
|
N50 |
G01 Z0.F0.2; |
接触工件 |
|
N60 |
X28.0 Z-2.0; |
车削C2的倒角 |
|
N70 |
Z-20.0 |
车削Φ20的轴 |
|
N80 |
X32.0; |
到锥度的起点 |
|
N90 |
X38.0 Z-30.0; |
车锥度 |
|
N100 |
Z-50.0; |
车削Φ38的轴 |
|
N110 |
X42.0; |
退刀 |
|
N120 |
G00 X100.0 Z100.0; |
快速退刀 |
|
N130 |
M05; |
主轴停止 |
|
N140 |
M00 ; |
程序暂停 |
|
N150 |
T0202; |
换2号切槽刀 |
|
N160 |
M03 S300 ; |
主轴正转300 r/min |
|
N170 |
G00 X34.0 Z-20.0 ; |
快速定位 |
|
N180 |
G01 X24.0 F0.05 ; |
切槽 |
|
N190 |
G00 X30.0; |
退刀 |
|
N200 |
Z-19.0; |
移动 |
|
N210 |
G01 X24.0; |
切槽 |
|
N220 |
G00 X30.0 |
退刀 |
|
N230 |
G00 X100.0 Z100.0 ; |
快速退刀 |
|
N240 |
M09 ; |
切削液停 |
|
N250 |
M30 ; |
程序结束 |
6、对刀:依次在工件毛坯上对好每一把刀在X、Z方向的坐标值。
(1) X方向对刀:回零→【MDI】→输入“S400 M03;T0101;”→按下【CYCLE START】键转动主轴。
【手摇】→切削外圆→沿Z轴退刀→停车测量外径→按【OFS/SET】键→按【偏置】键→【形状】里→输入“X外圆直径值”→按【测量】软键→刀具X向补偿值自动输入到几何形状里
(2) Z方向对刀:【手摇】→刀具切削端面→沿X轴正方向退刀→【形状】→输入“Z0” →按【测量】软键→刀具Z向补偿值自动输入到几何形状里。
7、自动运行程序,加工工件。
8、粗车后测量零件尺寸,根据工件图样要求的尺寸精度修改刀具磨损量;再次运行程序,加工出合格工件。
三、检验与考核:
检验与考核的内容及标准见表1-3。
表1-3 考核内容及标准
|
|
序号 |
考核内容 |
考核标准 |
评分标准 |
得分 |
|
|
编 程 |
1 |
设置工件坐标系 |
没有设定工件坐标系原点,全扣;原点位置设定不合理,扣2分 |
4 |
|
|
|
2 |
刀具安装 |
每把不合理扣2分 |
4 |
|
||
|
3 |
工艺路线、工艺参数 |
工艺路线不合理扣10分;工艺参数选择不合理扣10分 |
15 |
|
||
|
4 |
换刀点的选择 |
与工件等发生干涉,全扣 |
5 |
|
||
|
5 |
数控指令的使用 |
一般性指令错一处扣1分;出现一处危险性指令扣5分 |
10 |
|
||
|
6 |
程序结构 |
无程序名扣1分;程序格式与系统不相符,全扣 |
5 |
|
||
|
操 作 |
1 |
程序输入 |
超过10 min ,全扣 |
4 |
|
|
|
2 |
图形模拟演示 |
检查程序正确 |
4 |
|
||
|
3 |
对刀操作 |
方法正确,每把刀2分 |
4 |
|
||
|
4 |
自动运行程序 |
操作过程正确 |
4 |
|
||
|
5 |
刀具补偿调整尺寸 |
方法错误,全扣 |
3 |
|
||
|
6 |
安全操作 |
符合安全操作规程 |
4 |
|
||
|
工 件 |
1 |
外圆Φ38 0 -0.03 |
IT |
超差扣3分 |
6 |
|
|
|
Ra |
降一级扣2分 |
||||
|
2 |
外圆Φ20 0 -0.03 |
IT |
超差扣3分 |
6 |
|
|
|
|
Ra |
降一级扣2分 |
||||
|
3 |
长度20 |
超差全扣 |
4 |
|
||
|
4 |
长度50 |
超差全扣 |
4 |
|
||
|
5 |
锥面 |
IT |
超差扣4分 |
5 |
|
|
|
|
Ra |
降一级扣2分 |
||||
|
6 |
5*2槽 |
IT |
超差扣3分 |
5 |
|
|
|
|
Ra |
降一级扣2分 |
||||
|
7 |
其余表面粗糙度Ra3.2 |
降一级扣2分 |
4 |
|
||
|
总计 |
100 |
|||||
四、注意事项:
1、为正确地编写数控程序,应在编写程序前根据工件的情况选择工件原点。确定好工件原点后,还必须确定刀具的起始点。
2、编程时还应考虑车削外圆的始点和端面车削的始点,这两点的确定应结合考虑工件的毛坯情况。如果毛坯余量较大,应进行多次粗车,最后进行一次
精车,因而每次的车削始点都不相同。
五、习题1
- 上一篇:课程章节-项目十:子程序
- 下一篇:课程章节-项目十二:G02与G03外轮廓加工实训

